 
			 
				MASANO:
In un tranquillo contesto composto da sole quattro unità abitative, proponiamo in vendita un trilocale completamente ristrutturato nel 2021, situato al secondo piano ed ultimo e dotato di box auto e cantina al piano terra. L’appartamento si distingue per l’accuratezza degli interventi eseguiti e per l’elevato livello delle finiture, che coniugano estetica, funzionalità e risparmio energetico.
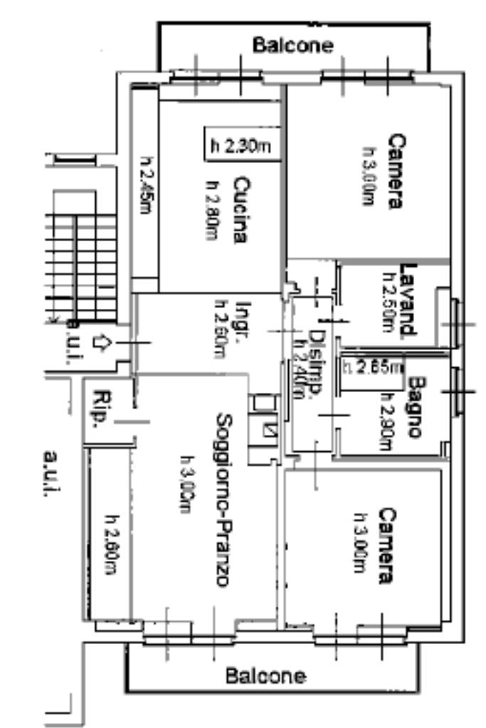
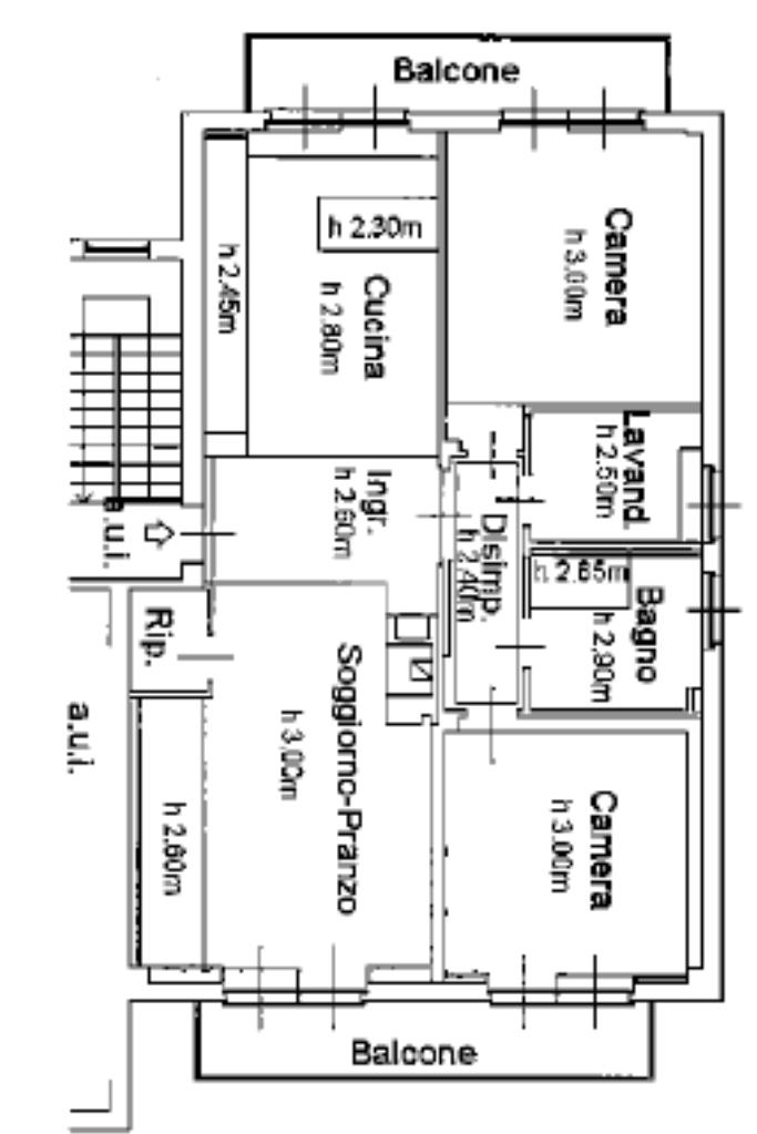
L’ingresso conduce direttamente alla zona giorno, caratterizzata da un grande open space con soggiorno e cucina, reso luminoso dalla doppia esposizione grazie ai due balconi disposti ai lati opposti dell'abitazione. Un comodo ripostiglio, perfettamente integrato nella distribuzione degli spazi, completa la zona giorno.
Proseguendo attraverso il disimpegno si accede alla zona notte, composta da una camera con uscita sul balcone, un bagno finestrato adibito anche a lavanderia e dotato di box doccia, un secondo bagno anch’esso finestrato e completo di doccia, e infine una spaziosa camera matrimoniale con affaccio sul secondo balcone.
La recente ristrutturazione ha interessato ogni aspetto dell’immobile. Sono stati completamente rifatti i bagni, l’impianto elettrico e l’impianto di riscaldamento, ora servito da una caldaia a condensazione di ultima generazione. L’appartamento è inoltre dotato di un impianto di climatizzazione canalizzato a soffitto con bocchette a filo e riprese d’aria perfettamente integrate, nonché di un camino a pellet con canalizzazione a soffitto per la diffusione del calore anche nei bagni. L’illuminazione è a LED, le pavimentazioni in gres porcellanato sono state completamente rifatte, mentre il parquet in teak è stato trattato e laminato. Tutta la casa è gestita da un avanzato impianto domotico Smart Bticino, che consente il controllo da remoto di luci, clima e tapparelle elettrificate. È presente anche un videocitofono con gestione da remoto.
A completare la proprietà troviamo una comoda e spaziosa cantina di circa 55 mq suddivisa in due ambienti separati e un box auto al piano terra. L’appartamento rappresenta la soluzione ideale per chi è alla ricerca di un’abitazione pronta all’uso, con spazi ben distribuiti, dotata delle più moderne tecnologie e inserita in un contesto residenziale tranquillo e riservato.
 Immobile valutato con T·Valuta
Immobile valutato con T·Valuta
								Ti interessa visionare l'immobile?