Trilocale in vendita

Caravaggio, Piazza A. Locatelli
€ 228.000
3 locali 3 locali
95 Mq 95 Mq
2 bagni 2 bagni

Trilocale in vendita

Caravaggio, Piazza A. Locatelli

Descrizione annuncio

CARAVAGGIO

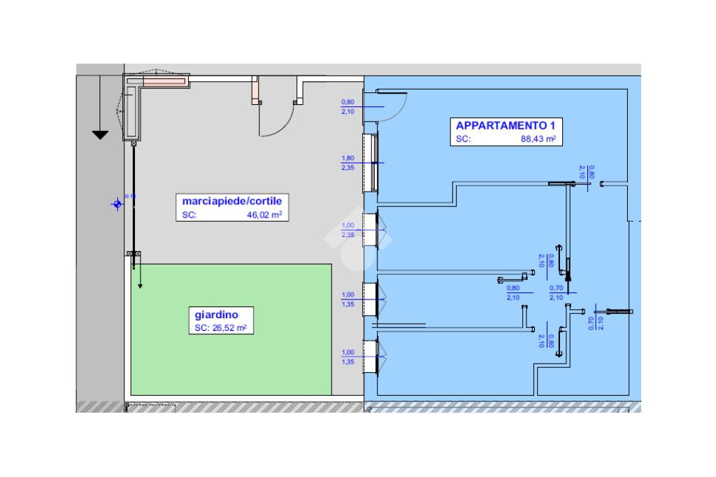
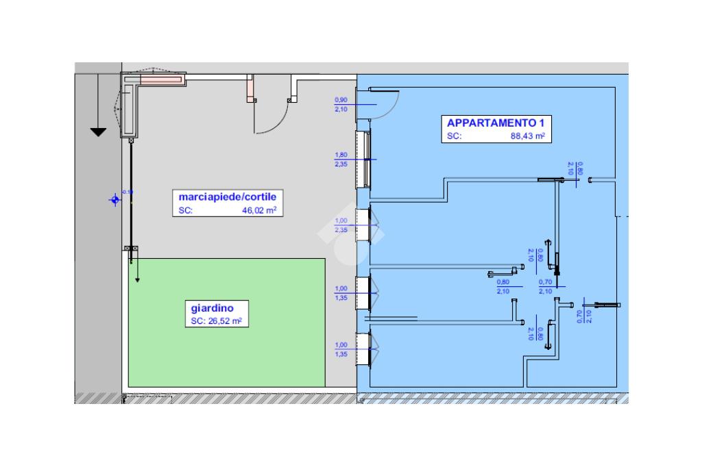
Proponiamo in vendita un elegante appartamento al piano terra di circa 90 mq, situato in una nuova zona residenziale di recente costruzione, pensata per offrire comfort, efficienza e qualità della vita. Ultima disponibilità all’interno di un contesto moderno e riservato, ideale per famiglie, coppie o per chi desidera vivere in un ambiente tranquillo senza rinunciare alla comodità dei servizi.

L’abitazione è composta da tre locali ben distribuiti, con una zona giorno open space affacciata direttamente sull’esterno, due camere da letto e doppi servizi, progettati con finiture contemporanee e materiali di alta qualità. Gli spazi interni sono funzionali e razionali, studiati per garantire massima vivibilità e comfort in ogni ambiente.

Punto di forza dell’immobile è la splendida area privata esterna, perfetta per momenti di relax all’aperto, pranzi e cene in compagnia, oppure per chi desidera uno spazio verde da personalizzare secondo le proprie esigenze.

L’appartamento è inserito in un edificio di classe energetica A4, sinonimo di elevata efficienza, bassi consumi e massimo rispetto per l’ambiente. Le tecnologie costruttive di ultima generazione assicurano un eccellente isolamento termico e acustico, oltre a un significativo risparmio energetico nel tempo.

Soluzione ideale per chi cerca una casa nuova, moderna e pronta da vivere, in un contesto residenziale curato e ben collegato. Un’opportunità unica da non perdere.

Mostra tutto

Nelle vicinanze

Trasporto pubblico Trasporto pubblico
stazione di Caravaggio
stazione di Caravaggio
740 m
Caravaggio - Via Ventiquattro Maggio
Caravaggio - Via Ventiquattro Maggio
210 m
Caravaggio - Via Mazzini
Caravaggio - Via Mazzini
240 m
Vidalengo
Vidalengo
2,3 Km
Ricariche auto elettriche Ricariche auto elettriche
Caravaggio Mazzini Fast | Ressolar
220 m
LIDL Caravaggio
1,1 Km
Scuole Scuole
Scuola elementare Michelangelo Merisi
70 m
Istituto agrario
100 m
Liceo Statale Galileo Galilei
350 m
Conventino - La Sorgente
380 m
Istituto Comprensivo "Mastri Caravaggini"
440 m
Farmacia Farmacia
Farmacia Comunale 1
230 m
Farmacia Ambiveri
240 m
Farmacia Antonioli
260 m
Farmacia San Giovanni
2,8 Km
Farmacia Bianchi
3,0 Km
Ospedali Ospedali
Azienda Ospedaliera Treviglio Caravaggio
2,7 Km
Supermercati Supermercati
Supermercato Buongiorno
360 m
MD
1,0 Km
EuroSpin
1,0 Km
Carrefour Market
1,1 Km
Lidl
1,1 Km
Negozi Negozi
Il chicco di grano
80 m
La coccinella
90 m
Panificio Avelli
130 m
Panificio Damoni
160 m
Al Furneer
180 m
Bar Bar
UP Cafè
60 m
Bar Tabacchi Castello
100 m
La taverna del Caravaggio
120 m
Porta Prata
200 m
Circulì
210 m
Ristoranti Ristoranti
Quo Vadis
140 m
Da Bassano
170 m
Gambero d'oro
190 m
DD Dario De Santis
190 m
La Taverna del Sud
330 m
Mostra tutto

Caratteristiche

Rif.:
61161543
Piano:
Terra di 2
Totale piani:
2
Camere da letto:
2
Arredamento:
Assente
Condizionamento:
Predisposizione impianto
Mostra tutto
Prezzo Prezzo
€ 228.000
Rata mutuo Rata mutuo
€ 1.080 / mese
Spese annue Spese annue
€ 0
Proponi il tuo prezzoProponi il tuo prezzo
Immobile valutato con T·Valuta

Classe Energetica

A4
A4
A4
A4
A4
A4
A4
A4
A4
EP globale non rinnovabile:
11.00 kW h/m² anno
EP globale rinnovabile:
0.30 kW h/m² anno
EP invernale del fabbricato:
EP estiva del fabbricato:
Anno di costruzione:
2026
Riscaldamento:
Autonomo
Tipo impianto:
A pavimento
Tipo alimentazione:
Pannelli

Ti interessa visionare l'immobile?

Fissa un appuntamento  Fissa un appuntamento

Richiedi informazioni

Clicca su Leggi per aprire l'informativa
* Questi campi sono obbligatori

Calcola il tuo mutuo

Semplice e senza impegno
Anticipo

( % )
Mutuo

( % )

pochi semplici passi

inserisci i tuoi dati
Questionario completato
Grazie per aver richiesto un appuntamento senza impegno con un nostro Consulente del Credito e Assicurativo.

Hai inserito correttamente tutti i dati necessari e a breve riceverai una e-mail con un link da convalidare per inviare i tuoi dati.
Affiliato
Progetto Caravaggio Sas
P.zza Antonio Locatelli, 7 24043 Caravaggio (BG)

Il nostro staff


  • Roberto Viviani
    Collaboratore

  • Alessandro Bianchi
    Affiliato

  • Cristian Maffesi
    Collaboratore
P.zza Antonio Locatelli, 7 24043 Caravaggio (BG)
Zona: Caravaggio - Fornovo
Mostra su mappa
Orari: da Lunedì a Venerdì 9.00-12.30/14.30-20.00; Sabato 9.00-12.30/14.30-17.00
Affiliato
Progetto Caravaggio Sas
P.zza Antonio Locatelli, 7 24043 Caravaggio (BG)

2026 Tecnocasa Franchising S.p.A. - P. IVA 08365160152 - Via Monte Bianco 60/A 20089 Rozzano (MI). Ogni agenzia ha un proprio titolare ed è autonoma. Privacy policy | Policy utilizzo | Cookie policy