Multilocale in vendita

Caravaggio, Via Vincenzo Moietta
€ 160.000
4 locali 4 locali
135 Mq 135 Mq
1 bagno 1 bagno

Multilocale in vendita

Caravaggio, Via Vincenzo Moietta

Descrizione annuncio

CARAVAGGIO

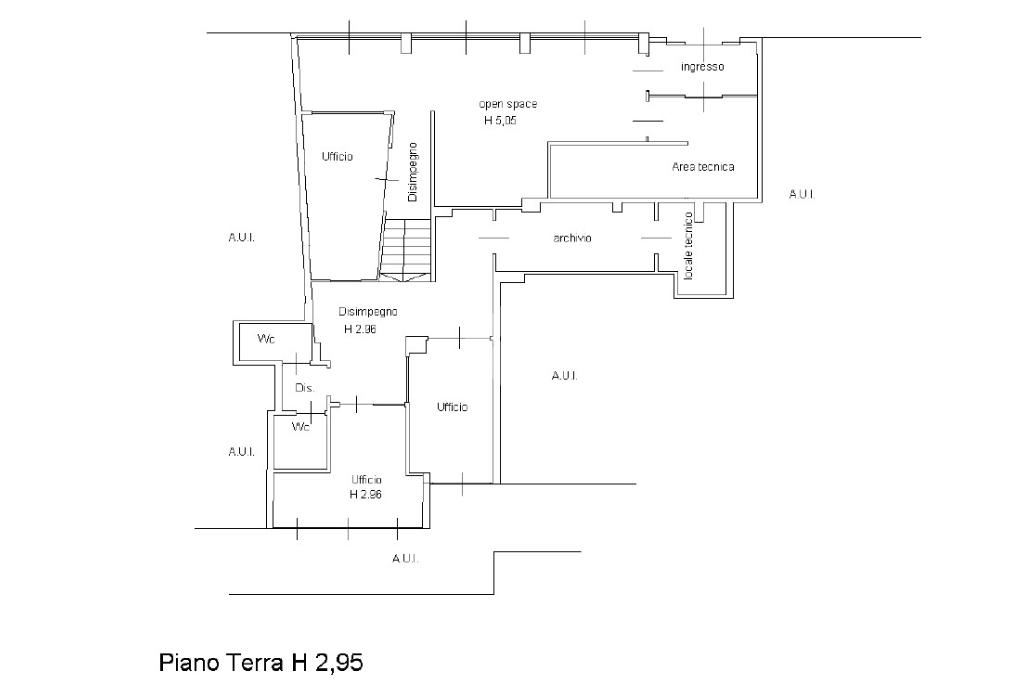
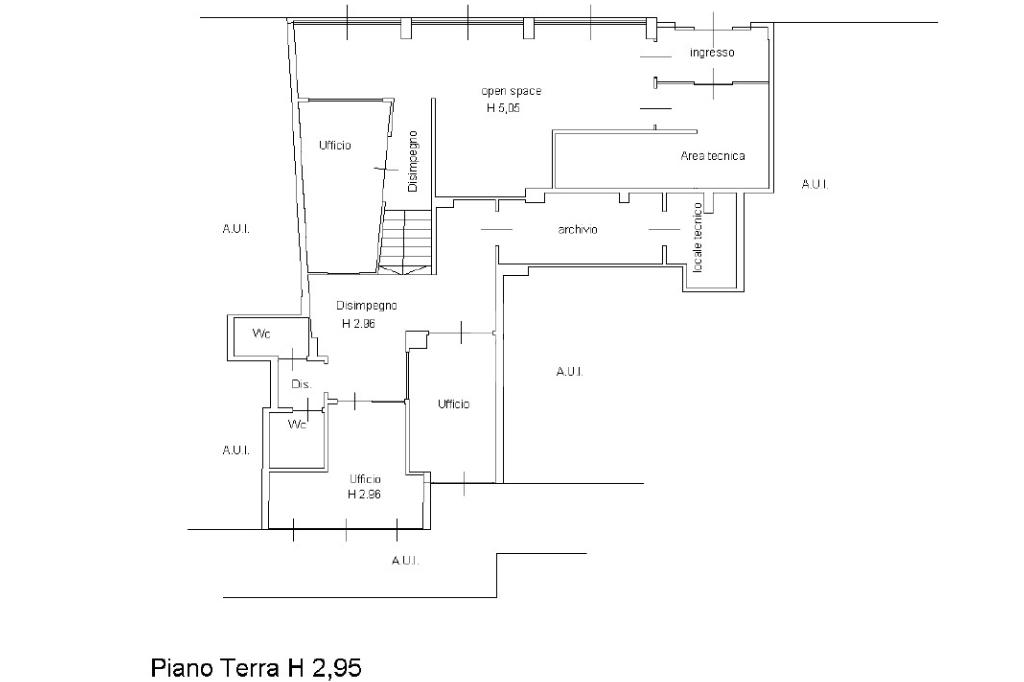
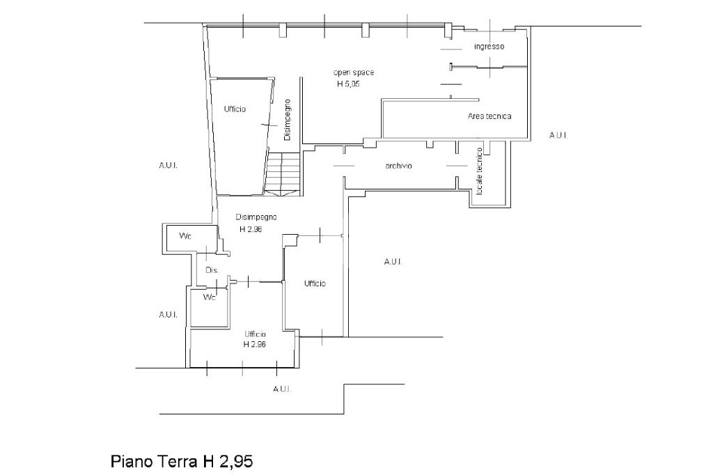
Proponiamo in vendita un locale commerciale di circa 135 mq, situato al piano terra e rialzato, caratterizzato da grande visibilità e funzionalità degli spazi interni. L’immobile rappresenta una soluzione ideale sia per chi desidera avviare o trasferire la propria attività in una posizione strategica, sia per chi è alla ricerca di un investimento immobiliare di sicuro interesse. L’unità è attualmente organizzata in modo razionale e professionale: l’ingresso conduce a una curata area reception dedicata all’accoglienza della clientela, mentre tre uffici separati e ben distribuiti garantiscono privacy operativa e massima versatilità d’utilizzo. I servizi igienici sono conformi alle normative vigenti e comprendono bagno accessibile a persone con disabilità, assicurando piena funzionalità e rispetto degli standard richiesti. Il locale gode di ottima luminosità grazie a tre ampie vetrine fronte strada, che assicurano elevata visibilità commerciale e rappresentano un importante valore aggiunto per qualsiasi tipologia di attività. Tutti gli impianti risultano conformi, permettendo un utilizzo immediato senza necessità di interventi straordinari. Il comfort ambientale è garantito da un moderno sistema di riscaldamento e climatizzazione tramite termoconvettori ad aria calda e fredda, in grado di assicurare benessere durante tutto l’arco dell’anno. La posizione, centrale e ben servita, offre comodi parcheggi nelle immediate vicinanze e la prossimità a numerose attività commerciali e servizi del paese, rendendo l’immobile particolarmente interessante per studi professionali, uffici direzionali, attività di consulenza o servizi al pubblico. Una proposta completa, che coniuga visibilità, funzionalità e valore nel tempo.

Mostra tutto

Nelle vicinanze

Trasporto pubblico Trasporto pubblico
stazione di Caravaggio
stazione di Caravaggio
780 m
Caravaggio - Circonvallazione Porta Nuova
Caravaggio - Circonvallazione Porta Nuova
210 m
Caravaggio - Circonvallazione Pulcheria
Caravaggio - Circonvallazione Pulcheria
300 m
Vidalengo
Vidalengo
2,4 Km
Ricariche auto elettriche Ricariche auto elettriche
Caravaggio Mazzini Fast | Ressolar
390 m
LIDL Caravaggio
1,3 Km
Scuole Scuole
Istituto agrario
90 m
Scuola elementare Michelangelo Merisi
240 m
Scuola dell'infanzia statale "San Bernardino"
510 m
Liceo Statale Galileo Galilei
520 m
Conventino - La Sorgente
540 m
Farmacia Farmacia
Farmacia Ambiveri
80 m
Farmacia Comunale 1
110 m
Farmacia Antonioli
120 m
Farmacia Bianchi
2,8 Km
Farmacia San Giovanni
2,9 Km
Ospedali Ospedali
Azienda Ospedaliera Treviglio Caravaggio
2,9 Km
Supermercati Supermercati
Supermercato Buongiorno
300 m
EuroSpin
830 m
MD
1,2 Km
Lidl
1,3 Km
Carrefour Market
1,3 Km
Negozi Negozi
Al Furneer
90 m
Anto
100 m
Alice Matisse
110 m
Panificio Stuani
130 m
Oreni Boutique
140 m
Bar Bar
Bar Centrale
50 m
Papa Joe
60 m
Petit Café
100 m
Triskell
120 m
Bar Magic
120 m
Ristoranti Ristoranti
Gambero d'oro
60 m
Da Bassano
120 m
DD Dario De Santis
130 m
Pizza Trevi
240 m
La Taverna del Sud
270 m
Mostra tutto

Caratteristiche

Rif.:
61183649
Piano:
Terra di 3
Totale piani:
3
Camere da letto:
1
Arredamento:
Completo
Condizionamento:
Autonomo
Mostra tutto
Prezzo Prezzo
€ 160.000
Rata mutuo Rata mutuo
€ 758 / mese
Spese annue Spese annue
€ 3.600
Proponi il tuo prezzoProponi il tuo prezzo

Classe Energetica

C
C
C
C
C
C
C
C
C
EP globale non rinnovabile:
270.60 kW h/m² anno
EP globale rinnovabile:
0.30 kW h/m² anno
EP invernale del fabbricato:
EP estiva del fabbricato:
Anno di costruzione:
1967
Riscaldamento:
Autonomo
Tipo impianto:
A radiatori
Tipo alimentazione:
Metano

Ti interessa visionare l'immobile?

Fissa un appuntamento  Fissa un appuntamento

Richiedi informazioni

Clicca su Leggi per aprire l'informativa
* Questi campi sono obbligatori

Calcola il tuo mutuo

Semplice e senza impegno
Anticipo

( % )
Mutuo

( % )

pochi semplici passi

inserisci i tuoi dati
Questionario completato
Grazie per aver richiesto un appuntamento senza impegno con un nostro Consulente del Credito e Assicurativo.

Hai inserito correttamente tutti i dati necessari e a breve riceverai una e-mail con un link da convalidare per inviare i tuoi dati.
Affiliato
Progetto Caravaggio Sas
P.zza Antonio Locatelli, 7 24043 Caravaggio (BG)

Il nostro staff


  • Roberto Viviani
    Collaboratore

  • Alessandro Bianchi
    Affiliato

  • Cristian Maffesi
    Collaboratore
P.zza Antonio Locatelli, 7 24043 Caravaggio (BG)
Zona: Caravaggio - Fornovo
Mostra su mappa
Orari: da Lunedì a Venerdì 9.00-12.30/14.30-20.00; Sabato 9.00-12.30/14.30-17.00
Affiliato
Progetto Caravaggio Sas
P.zza Antonio Locatelli, 7 24043 Caravaggio (BG)

2026 Tecnocasa Franchising S.p.A. - P. IVA 08365160152 - Via Monte Bianco 60/A 20089 Rozzano (MI). Ogni agenzia ha un proprio titolare ed è autonoma. Privacy policy | Policy utilizzo | Cookie policy