 
			 
				CARAVAGGIO:
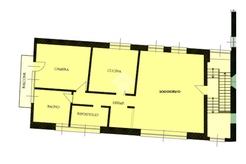
Proponiamo in vendita un cortile privato,composto da un appartamento situato al primo piano, in posizione strategica vicino al centro del paese, comoda per raggiungere tutti i principali servizi. L’immobile è composto da un soggiorno, cucina abitabile, ripostiglio, disimpegno, bagno finestrato con doccia e camera matrimoniale con balcone. Gli ambienti risultano accoglienti e ben distribuiti, ideali per una famiglia o per chi cerca comfort e praticità.
L’immobile è dotato di citofono, impianto telefonico, infissi in PVC con doppio vetro, tapparelle nuove e caldaia a condensazione di ultima generazione.
Completano la proprietà una veranda di circa 60 mq con portico e cortile privato, perfetti per momenti di relax all’aperto, oltre a due posti auto coperti e un locale accessorio, adattabile alle varie esigenze. Soluzione ideale per chi desidera vivere in un contesto tranquillo ma vicina a al centro paese.
 Immobile valutato con T·Valuta
Immobile valutato con T·Valuta
								Ti interessa visionare l'immobile?