Villa singola in vendita

Caravaggio, Piazza A. Locatelli
€ 440.000
Prezzo aggiornato
4 locali 4 locali
171 Mq 171 Mq
2 bagni 2 bagni

Villa singola in vendita

Caravaggio, Piazza A. Locatelli

Descrizione annuncio

CARAVAGGIO:

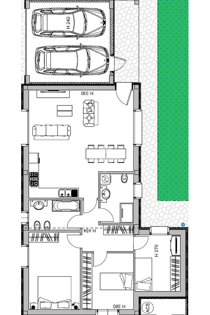
In un contesto residenziale tranquillo e riservato sorge una villa singola disposta interamente su un unico livello, progettata per offrire comfort, funzionalità e uno stile abitativo moderno. L’abitazione si apre su una zona giorno con cucina a vista, ambiente ampio e accogliente che grazie alle grandi vetrate atermiche si affaccia sul giardino.

Un comodo disimpegno conduce alla zona notte, dove si trovano tre camere da letto, di cui una matrimoniale e due singole, tutte pensate per assicurare privacy e tranquillità. La zona notte è servita da due bagni finestrati.

Completano la proprietà un box doppio con porte di accesso motorizzate e un ampio giardino che circonda la casa, perfetto per momenti di relax o per trascorrere il tempo all’aperto con la famiglia. L’abitazione è rifinita con serramenti esterni in legno con triplo vetro, porte d’ingresso blindate e un impianto di riscaldamento e raffrescamento autonomo a pavimento, soluzioni che garantiscono un’elevata efficienza energetica e un benessere abitativo costante in ogni stagione.

Questa villa rappresenta la soluzione ideale per chi desidera vivere in un ambiente indipendente, raffinato e funzionale, tutto su un unico piano.

Mostra tutto

Nelle vicinanze

Trasporto pubblico Trasporto pubblico
stazione di Caravaggio
stazione di Caravaggio
760 m
Caravaggio - Via Mazzini
Caravaggio - Via Mazzini
230 m
Caravaggio - Via Ventiquattro Maggio
Caravaggio - Via Ventiquattro Maggio
230 m
Vidalengo
Vidalengo
2,3 Km
Ricariche auto elettriche Ricariche auto elettriche
Caravaggio Mazzini Fast | Ressolar
210 m
LIDL Caravaggio
1,1 Km
Scuole Scuole
Scuola elementare Michelangelo Merisi
60 m
Istituto agrario
100 m
Liceo Statale Galileo Galilei
340 m
Conventino - La Sorgente
370 m
Istituto Comprensivo "Mastri Caravaggini"
440 m
Farmacia Farmacia
Farmacia Ambiveri
240 m
Farmacia Comunale 1
240 m
Farmacia Antonioli
250 m
Farmacia San Giovanni
2,8 Km
Farmacia Bianchi
3,0 Km
Ospedali Ospedali
Azienda Ospedaliera Treviglio Caravaggio
2,7 Km
Supermercati Supermercati
Supermercato Buongiorno
380 m
MD
1,0 Km
EuroSpin
1,0 Km
Lidl
1,1 Km
Carrefour Market
1,1 Km
Negozi Negozi
Il chicco di grano
90 m
La coccinella
110 m
Panificio Avelli
110 m
Panificio Damoni
190 m
Al Furneer
190 m
Bar Bar
UP Cafè
40 m
La taverna del Caravaggio
100 m
Bar Tabacchi Castello
100 m
Circulì
200 m
Bar Centrale
210 m
Ristoranti Ristoranti
Quo Vadis
150 m
DD Dario De Santis
170 m
Da Bassano
180 m
Gambero d'oro
200 m
La Taverna del Sud
350 m
Mostra tutto

Caratteristiche

Rif.:
61136387
Piano:
Terra
Box:
2
Camere da letto:
3
Arredamento:
Assente
Condizionamento:
Autonomo
Mostra tutto
Prezzo Prezzo
€ 440.000
Rata mutuo Rata mutuo
€ 2.075 / mese
Spese annue Spese annue
€ 0
Proponi il tuo prezzoProponi il tuo prezzo
Immobile valutato con T·Valuta

Classe Energetica

A4
A4
A4
A4
A4
A4
A4
A4
A4
EP invernale del fabbricato:
EP estiva del fabbricato:
Anno di costruzione:
2026
Riscaldamento:
Autonomo
Tipo impianto:
A pavimento
Tipo alimentazione:
Pannelli

Prezzo ridotto di €1 (3%%)

Ti interessa visionare l'immobile?

Fissa un appuntamento  Fissa un appuntamento

Richiedi informazioni

Clicca su Leggi per aprire l'informativa
* Questi campi sono obbligatori

Calcola il tuo mutuo

Semplice e senza impegno
Anticipo

( % )
Mutuo

( % )

pochi semplici passi

inserisci i tuoi dati
Questionario completato
Grazie per aver richiesto un appuntamento senza impegno con un nostro Consulente del Credito e Assicurativo.

Hai inserito correttamente tutti i dati necessari e a breve riceverai una e-mail con un link da convalidare per inviare i tuoi dati.
Affiliato
Progetto Caravaggio Sas
P.zza Antonio Locatelli, 7 24043 Caravaggio (BG)

Il nostro staff


  • Roberto Viviani
    Collaboratore

  • Alessandro Bianchi
    Affiliato

  • Cristian Maffesi
    Collaboratore

  • Alessia Campisi
    Coordinatrice
P.zza Antonio Locatelli, 7 24043 Caravaggio (BG)
Zona: Caravaggio - Fornovo
Mostra su mappa
Orari: da Lunedì a Venerdì 9.00-12.30/14.30-20.00; Sabato 9.00-12.30/14.30-17.00
Affiliato
Progetto Caravaggio Sas
P.zza Antonio Locatelli, 7 24043 Caravaggio (BG)

2025 Tecnocasa Franchising S.p.A. - P. IVA 08365160152 - Via Monte Bianco 60/A 20089 Rozzano (MI). Ogni agenzia ha un proprio titolare ed è autonoma. Privacy policy | Policy utilizzo | Cookie policy