Villa singola in vendita

Caravaggio, Piazza Locatelli
€ 335.000
4 locali 4 locali
170 Mq 170 Mq
2 bagni 2 bagni

Villa singola in vendita

Caravaggio, Piazza Locatelli

Descrizione annuncio

CARAVAGGIO:

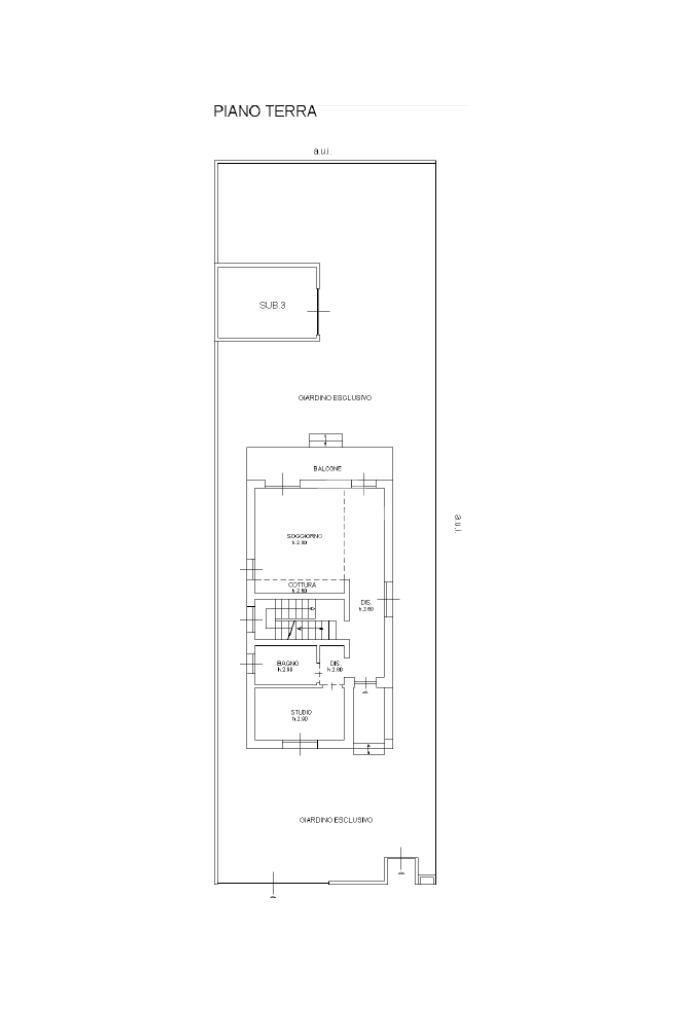
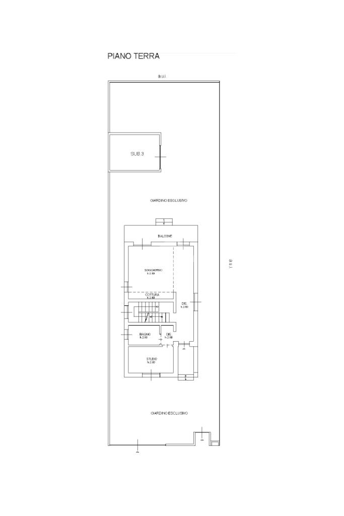
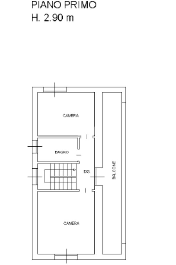
Nel centro storico di Caravaggio, in zona comoda per tutti i servizi e a cinque minuti dal casello autostradale BreBeMi, proponiamo in vendita un’ ampia villa singola su due livelli completamente ristrutturata, cosi composta: al piano terra: ingresso, studio/cameretta, bagno, soggiorno/pranzo, cucina Open Space con uscita sul giardino privato, al primo piano troviamo un'ampia camera matrimoniale, una cameretta, un bagno e una terrazza di 20 mq con la predisposizione per creare una zona lavanderia, i due piani sono collegati da una scala interna.

Completa la proprietà un doppio posto auto interno con possibilità di renderlo coperto con una tettoia di ultima generazione e un deposito/box .

L’abitazione è stata oggetto di una ristrutturazione totale e dispone di serramenti in PVC, cappotto isolante, impianto elettrico nuovo, predisposizione per aria condizionata e riscaldamento a pavimento con sistema ibrido composto da pompa di calore e caldaia a condensazione. È inoltre prevista la predisposizione per la colonnina di ricarica per auto elettrica e un impianto fotovoltaico da 4,8 kW.

La casa è pronta per la consegna e necessita solo delle finiture interne, come pavimenti e rivestimenti bagni.

Una soluzione ideale per chi cerca indipendenza, comfort e alta efficienza energetica, a pochi passi dal centro di Caravaggio.

Mostra tutto

Nelle vicinanze

Trasporto pubblico Trasporto pubblico
stazione di Caravaggio
stazione di Caravaggio
760 m
Caravaggio - Via Mazzini
Caravaggio - Via Mazzini
230 m
Caravaggio - Via Ventiquattro Maggio
Caravaggio - Via Ventiquattro Maggio
230 m
Vidalengo
Vidalengo
2,3 Km
Ricariche auto elettriche Ricariche auto elettriche
Caravaggio Mazzini Fast | Ressolar
210 m
LIDL Caravaggio
1,1 Km
Scuole Scuole
Scuola elementare Michelangelo Merisi
60 m
Istituto agrario
100 m
Liceo Statale Galileo Galilei
340 m
Conventino - La Sorgente
370 m
Istituto Comprensivo "Mastri Caravaggini"
440 m
Farmacia Farmacia
Farmacia Ambiveri
240 m
Farmacia Comunale 1
240 m
Farmacia Antonioli
250 m
Farmacia San Giovanni
2,8 Km
Farmacia Bianchi
3,0 Km
Ospedali Ospedali
Azienda Ospedaliera Treviglio Caravaggio
2,7 Km
Supermercati Supermercati
Supermercato Buongiorno
380 m
MD
1,0 Km
EuroSpin
1,0 Km
Lidl
1,1 Km
Carrefour Market
1,1 Km
Negozi Negozi
Il chicco di grano
90 m
La coccinella
110 m
Panificio Avelli
110 m
Panificio Damoni
190 m
Al Furneer
190 m
Bar Bar
UP Cafè
40 m
La taverna del Caravaggio
100 m
Bar Tabacchi Castello
100 m
Circulì
200 m
Bar Centrale
210 m
Ristoranti Ristoranti
Quo Vadis
150 m
DD Dario De Santis
170 m
Da Bassano
180 m
Gambero d'oro
200 m
La Taverna del Sud
350 m
Mostra tutto

Caratteristiche

Rif.:
61140136
Piano:
2 di 2 (Piano su più livelli)
Box:
1
Posti auto:
2
Balconi:
1
Terrazzi:
1
Mostra tutto
Prezzo Prezzo
€ 335.000
Rata mutuo Rata mutuo
€ 1.580 / mese
Spese annue Spese annue
€ 0
Proponi il tuo prezzoProponi il tuo prezzo
Immobile valutato con T·Valuta

Classe Energetica

A4
A4
A4
A4
A4
A4
A4
A4
A4
EP globale non rinnovabile:
24.94 kW h/m² anno
EP invernale del fabbricato:
EP estiva del fabbricato:
Anno di costruzione:
2024
Riscaldamento:
Autonomo
Tipo impianto:
A pavimento
Tipo alimentazione:
Altro

Ti interessa visionare l'immobile?

Fissa un appuntamento  Fissa un appuntamento

Richiedi informazioni

Clicca su Leggi per aprire l'informativa
* Questi campi sono obbligatori

Calcola il tuo mutuo

Semplice e senza impegno
Anticipo

( % )
Mutuo

( % )

pochi semplici passi

inserisci i tuoi dati
Questionario completato
Grazie per aver richiesto un appuntamento senza impegno con un nostro Consulente del Credito e Assicurativo.

Hai inserito correttamente tutti i dati necessari e a breve riceverai una e-mail con un link da convalidare per inviare i tuoi dati.
Affiliato
Progetto Caravaggio Sas
P.zza Antonio Locatelli, 7 24043 Caravaggio (BG)

Il nostro staff


  • Roberto Viviani
    Collaboratore

  • Alessandro Bianchi
    Affiliato

  • Cristian Maffesi
    Collaboratore

  • Alessia Campisi
    Coordinatrice
P.zza Antonio Locatelli, 7 24043 Caravaggio (BG)
Zona: Caravaggio - Fornovo
Mostra su mappa
Orari: da Lunedì a Venerdì 9.00-12.30/14.30-20.00; Sabato 9.00-12.30/14.30-17.00
Affiliato
Progetto Caravaggio Sas
P.zza Antonio Locatelli, 7 24043 Caravaggio (BG)

2025 Tecnocasa Franchising S.p.A. - P. IVA 08365160152 - Via Monte Bianco 60/A 20089 Rozzano (MI). Ogni agenzia ha un proprio titolare ed è autonoma. Privacy policy | Policy utilizzo | Cookie policy